Post graduate student of architecture and freelance artist
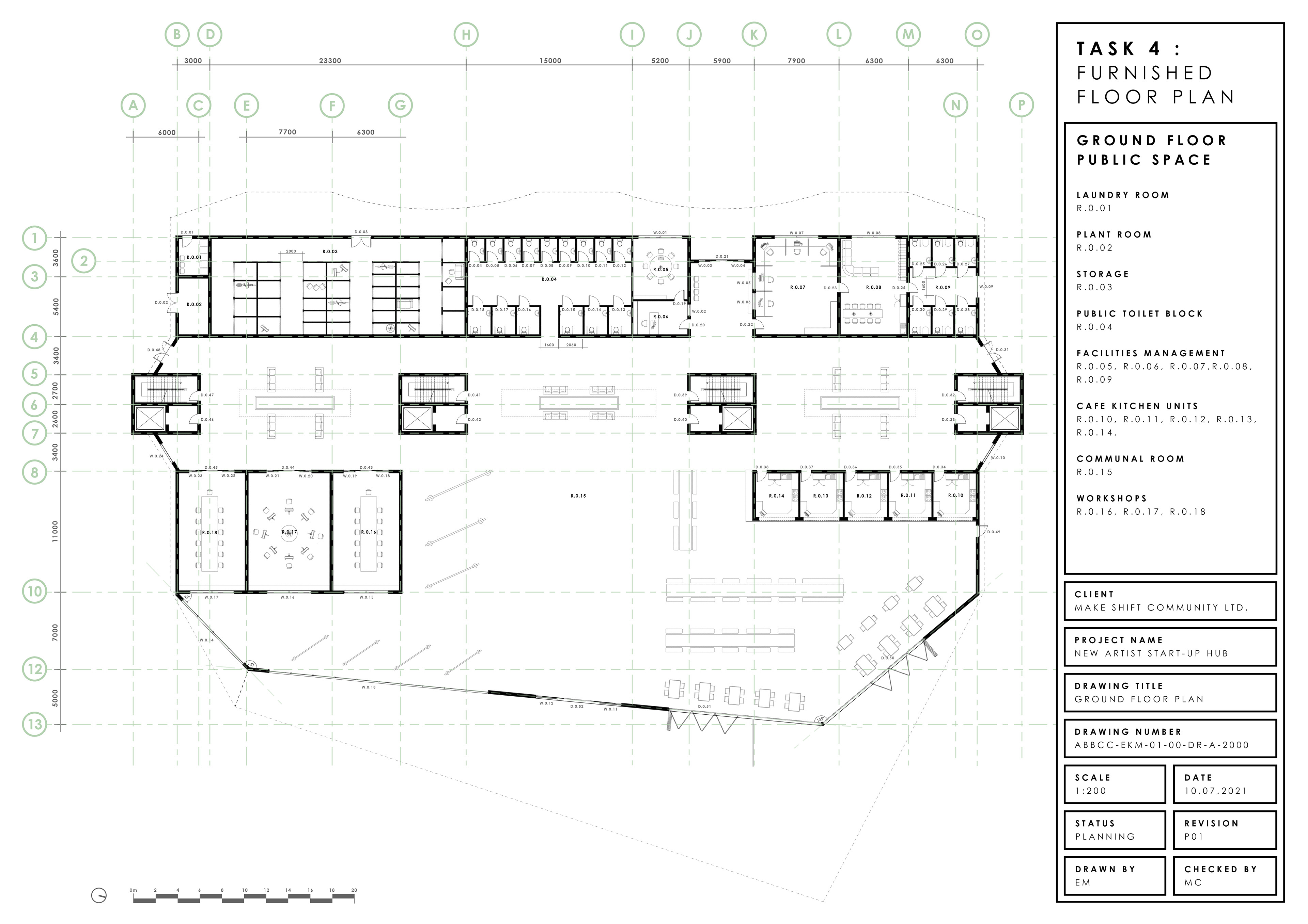
Urban Design Technology Plans
Third Year University
Created with Adobe Photoshop and AutoCAD
These are technological plans and elevations presenting accessibility, fire safety and building sytems for the Artist Housing and Gallery I designed for the Peckham Project.